Eine Kapitalanlage die funktioniert!

Bei den nachfolgenden Projekten handelt es sich um aktuelle Bauprojekte.

Die Vermarktung / der Vertrieb liegt bei dem entsprechenden Bauherrn.

Kontakten Sie uns gerne und wir leiten Ihre Anfrage gerne weiter.

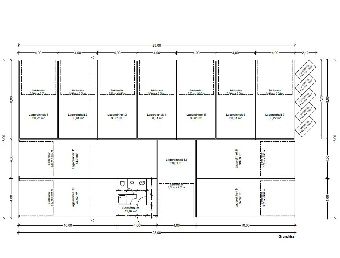
Ratzeburg

Mietgaragen & Stellplätze in Ratzeburg

Mietgaragen mit Stellplätzen

  • Standort: 23909 Ratzeburg
  • 28 XXL-Garagen & 7 Stellplätze
  • Grundstücksgröße: ca. 2.390m²
  • Projektphase: Genehmigungsplanung
Mehr erfahren
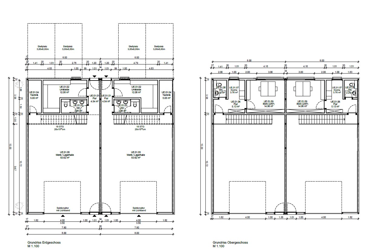
Mietgaragen in Rodenberg

Mietgaragen in Rodenberg

Mietgaragen mit modernen Lagerhallen und XXL-Garagen.

  • Standort: 31552 Rodenberg
  • 22 XXL-Garagen / 13 Fertiggaragen
  • Grundstücksgröße: ca. 2.175m²
  • Lagergröße: 8,50m x 3,50m / 6,00m x 3,00m
  • Projektphase: Baubeginn
Mehr erfahren
Mietgaragen & Stellplätze in Bochum

Mietgaragen & Stellplätze in Bochum

Großzügige Mietgaragen und Stellplätze für verschiedene Nutzungen.

  • Standort: 44809 Bochum
  • 12 XXL-Garagen
  • Grundstücksgröße: ca. 5.328m²
  • Lagergröße: 8,00m x 4,00m / 10,00m x 4,00m
  • Projektphase: Baubeginn
Mehr erfahren
Mietgaragen & Stellplätze in Krefeld

Mietgaragen & Stellplätze in Krefeld

Moderne XXL-Garagen für verschiedene Nutzungen.

  • Standort: 47809 Krefeld
  • 18 XXL-Garagen
  • Grundstücksgröße: ca. 1.638m²
  • Projektphase: Baubeginn
Mehr erfahren
Mietgaragen & Stellplätze in Wuppertal

Mietgaragen & Stellplätze in Wuppertal

Großzügige Stellplätze und Mietgaragen.

  • Standort: 42109 Wuppertal
  • 10 XXL-Garagen
  • Grundstücksgröße: ca. 1.000m²
  • Projektphase: Baubeginn erfolgt
Mehr erfahren
Mietgaragen & Stellplätze in Hamminkeln

Mietgaragen & Stellplätze in Hamminkeln

Geräumige Mietgaragen mit Stellplätzen.

  • Standort: 46499 Hamminkeln
  • 31 XXL-Garagen
  • Grundstücksgröße: ca. 2.006m²
  • Projektphase: Genehmigungsplanung
Mehr erfahren
Mietgaragen & Lagercontainer in Hannover

Mietgaragen & Lagercontainer in Hannover

Vielseitige Lager- und Garageneinheiten.

  • Standort: 30519 Hannover
  • 66 XXL-Garagen, 50 Lagercontainer
  • Grundstücksgröße: ca. 11.000m²
  • Projektphase: Genehmigungsplanung
Mehr erfahren
Unternehmereinheiten in Hannover

Unternehmereinheiten in Hannover

Gewerbliche Lager- und Produktionsflächen.

  • Standort: 30519 Hannover
  • 20 Unternehmereinheiten
  • Grundstücksgröße: ca. 11.500m²
  • Projektphase: Genehmigungsplanung
Mehr erfahren

Portfolio

XXL-Garage xxl garage xxl garagen Beispiel Garagenpark XXL Garagenpark XXL-Garage xxl garage xxl garagen Beispiel Garagenpark XXL Garagenpark XXL-Garage xxl garage xxl garagen Beispiel Garagenpark XXL Garagenpark XXL-Garage xxl garage xxl garagen Beispiel Garagenpark XXL Garagenpark XXL-Garage xxl garage xxl garagen Beispiel Garagenpark XXL Garagenpark XXL-Garage xxl garage xxl garagen Beispiel Garagenpark XXL Garagenpark XXL-Garage xxl garage xxl garagen Beispiel Garagenpark XXL Garagenpark XXL-Garage xxl garage xxl garagen Beispiel Garagenpark XXL Garagenpark XXL-Garage xxl garage xxl garagen Beispiel Garagenpark XXL Garagenpark XXL-Garage xxl garage xxl garagen Beispiel Garagenpark XXL Garagenpark XXL-Garage xxl garage xxl garagen Beispiel Garagenpark XXL Garagenpark XXL-Garage xxl garage xxl garagen Beispiel Garagenpark XXL Garagenpark XXL-Garage xxl garage xxl garagen Beispiel Garagenpark XXL Garagenpark XXL-Garage xxl garage xxl garagen Beispiel Garagenpark XXL Garagenpark XXL-Garage xxl garage xxl garagen Beispiel Garagenpark XXL Garagenpark XXL-Garage xxl garage xxl garagen Beispiel Garagenpark XXL Garagenpark
Partner werden - Handwerkerin

Kostenloses XXL-Garagen Handbuch anfordern!

Sie sind schon weiter in Ihren Überlegungen und benötigen keines unserer Serviceangebote? Dann fordern Sie jetzt unser kostenloses XXL-Garagen Handbuch für Informationen zu Ausführungen und Ausstattung an!